Skip to main content

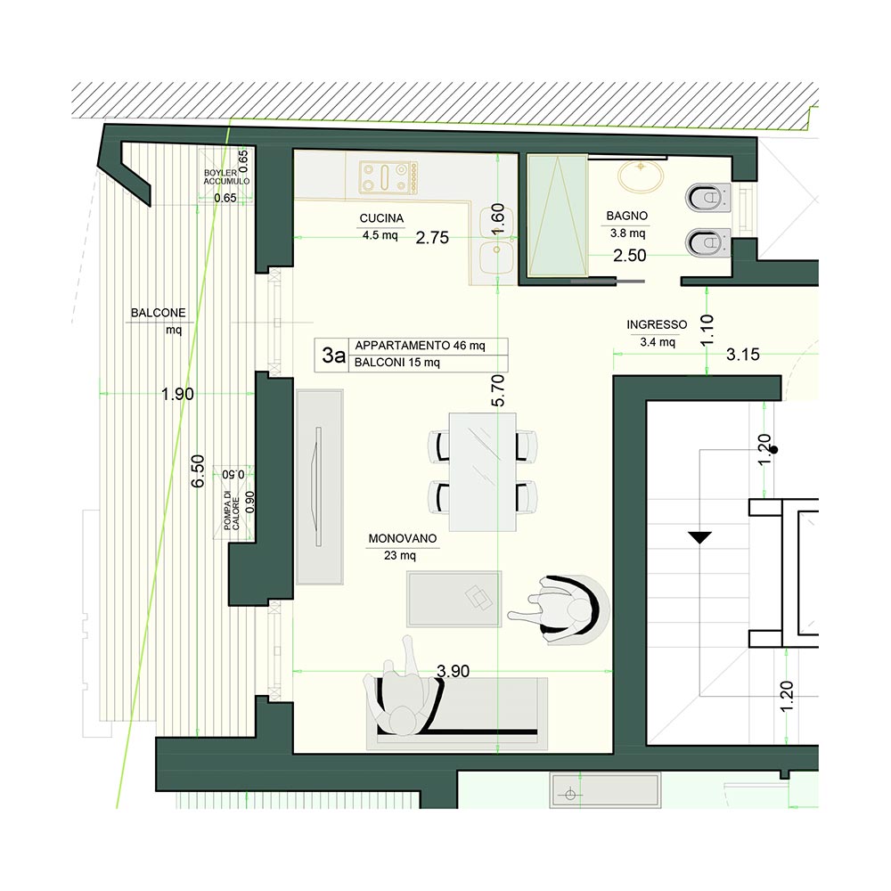
Suite Endurance

Terzo Piano

Superficie coperta

mq 46

Superficie terrazzo

mq 15

Superficie Commerciale

mq 51

Vivere sereni sul lungomare di Bari! Un’elegante suite in cui tutto è al posto giusto. In prossimità dell’ingresso un bagno ben disimpegnato e poi il living: un grande ambiente unico, scandito dalla zona pranzo con kitchen corner e dalla zona conversazione che di sera cambia volto trasformandosi in zona notte con divano letto, e poi due vetrate con affaccio sul balcone. I materiali di finitura sono preziosi e ricercati con un ampio ventaglio di scelte. Il confort è superlativo grazie ad una coibentazione di livello superiore e ad impianti di climatizzazione con ventilazione meccanica controllata a bassissimo consumo in grado di conseguire la virtuosa certificazione in classe A4 Nzeb. E poi la domotica per governare anche a distanza le principali funzioni della casa. Vivere ad impatto quasi zero finalmente è possibile.

Richiedi informazioni